Información:
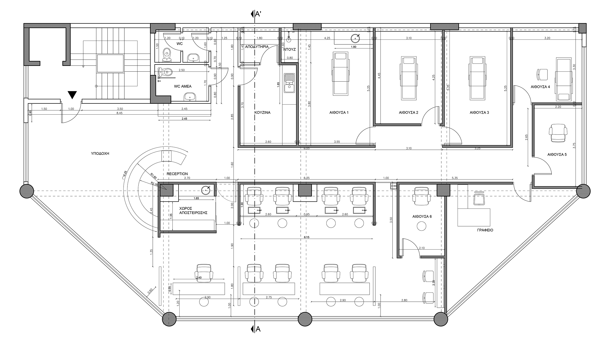
Diseño de un centro de estética (SPA) de 295mq en la segunda planta.
El diseño acentúa la iluminación natural, mientras las distintas funciones se organizan a través del uso de unos amplios pasillos. La separación visual se consigue mediante el uso de materiales traslucidos. Una paleta de colores terrosos crea una atmósfera acogedora, relajante y atractiva.












